方案展示
设计说明
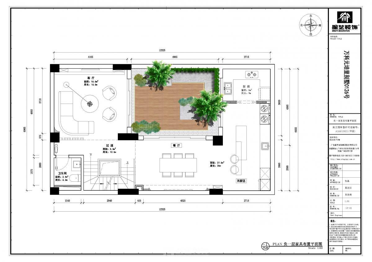
本设计采用现代简约风格,旨在为居住者打造一个简洁舒适又极具品质感的空间。 空间布局上,秉持开放性原则,减少不必要的隔断,使各功能区自然融合,营造出流畅开阔的活动动线。客厅、餐厅、厨房等区域相互贯通,视觉上更显通透大气。
[展开]
关注我们
分享到
微信

立即预约
在线咨询
在线客服
公安部备案号 44010602004978号