广东星艺装饰集团广州有限公司,一起寻找好装修!

星艺装饰(广州总部)

您的当前位置:首页>装修案例>芳满庭园张宅

分享到 微信

芳满庭园张宅
芳满庭园张宅
芳满庭园张宅
芳满庭园张宅
芳满庭园张宅
芳满庭园张宅
芳满庭园张宅
芳满庭园张宅
芳满庭园张宅
芳满庭园张宅
芳满庭园张宅
芳满庭园张宅
芳满庭园张宅
芳满庭园张宅

方案展示

芳满庭园张宅
芳满庭园张宅
芳满庭园张宅
芳满庭园张宅
芳满庭园张宅
芳满庭园张宅
芳满庭园张宅

设计师:万征国

设计经验:22年

上传作品:20套

芳满庭园张宅

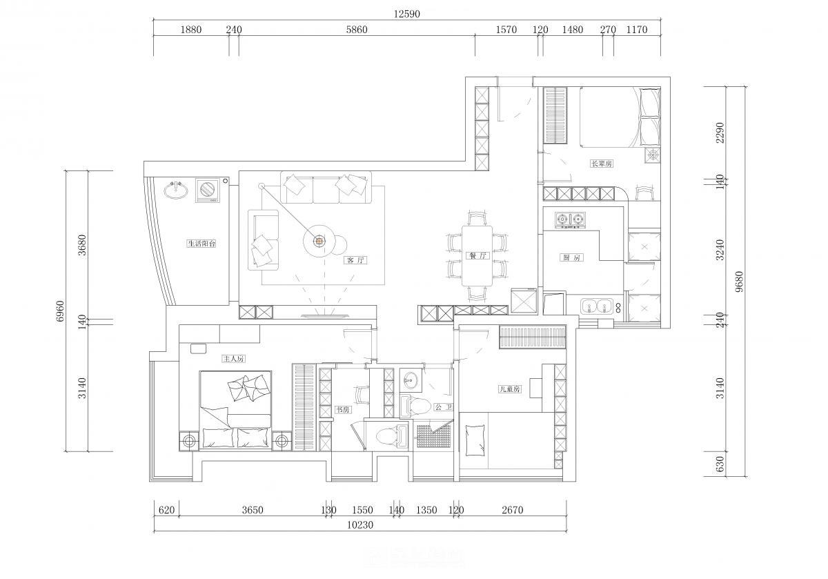
楼盘:华景新城芳满庭园

户型:三室两厅

面积:120 m²

设计风格:现代风格

工程造价:30万

设计说明

以温润木色为基调,糅合简约现代风格,打造适配大学教师家庭的雅致空间。线条利落,格局通透,兼顾书房的静谧治学氛围,于简素中藏温情,契合亲子共居的舒适日常。

[展开]

装修预约

  • 您的姓名: *
  • 联系方式: *
  • 楼盘名称:
  • 建筑面积: m2
  • 装修设想:
  • 取消

快速预约装修

  • 您的称呼
  • 手机号码
  • 楼盘名称
  • 建筑面积
  •  

(c)Copyright 2021 广东星艺装饰集团有限公司广州分公司 版权所有 粤ICP备12080332号 公安部备案号 44010602004978号