方案展示
设计说明
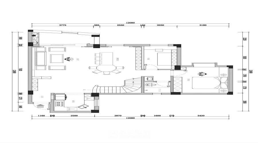
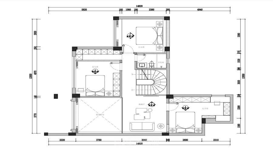
业主本来就住在这个小区,属于改善置换,夫妻2人,有1儿一女,预留长辈房间,业主讲风水,房子望江,考虑南北对流,楼梯希望可以通到屋面,餐厅位置比较小,设计上考虑楼梯的造型和餐厅位置的使用
[展开]
关注我们
分享到
微信

立即预约
在线咨询
在线客服
公安部备案号 44010602004978号